Product description
Concrete containers with the working platform and the straight outflow (vertical) are used to transport concrete mass and other materials of similar consistency by means of cranes. The container operator can be
transported together with the container. This container is an ideal solution for construction works with a difficult access. Containers with the working platform have a jaw drain mechanism (closing system) that is easy to operate when opening the container drain hole. The appropriate design of the drain mechanism guarantees easy opening of the container with the use of a small amount of effort by the worker. Additionally, the locking system prevents the container from opening automatically during transport of concrete thanks to the use of a gear mechanism. The concrete container with the working platform is characterized by a solid structure and high durability. The working platform meets the health and safety requirements. On its opposite side there is a container which, when filled with sand or debris, balances the weight of the worker being on the platform.


Assortment
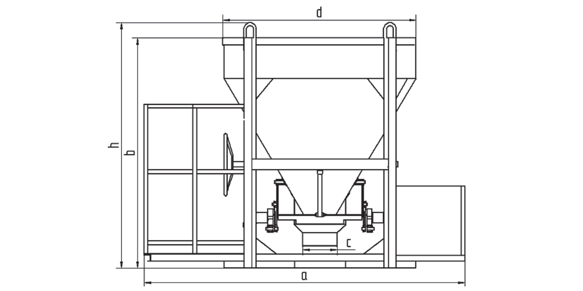
| Art. no. | Volume | h | b | d | a | c | Weight |
| m3 | mm | mm | mm | mm | mm | kg | |
| 10300 | 0,70 | 1600 | 1530 | 1400 | 2100 | 250 | 420 |
| 10302 | 1,00 | 1750 | 1650 | 1400 | 2100 | 250 | 440 |
| 10304 | 1,50 | 1900 | 1800 | 1500 | 2150 | 250 | 480 |
| 10305 | 2,00 | 1800 | 1700 | 1700 | 2300 | 250 | 530 |